作者: 开云链接官网发表时间:2019-12-03 15:11:41浏览量:2818【小中大】
餐厨垃圾处理项目设计方案:
1、设计依据
《机械电气安全》 (GB/T 5226.1-2008)
《破碎设备安全要求》 (GB18452-2001)
《工业机械电气设备》 (GB/T 5226.1—1996 )
《低压开关设备和控制设备》 (GB/T 14048.5-2008)
《机械电气安全》 (GB/T 5226.1-2008)
《电热装置的安全》 (GB/T 5959.1-2005)
《电热装置基本技术条件》 (GB/T 10067.3)
《低压开关设备和控制设备》 (GB/T 14048.5-2008)
《餐饮业餐厨废弃物处理与利用设备》 (GB/T 28739-2012)
《餐厨垃圾处理技术规范》 (GB/T 28739-2012)
2、质量标准
《机械电气安全》 (GB/T 5226.1-2008)
《破碎设备安全要求》 (GB18452-2001)
《工业机械电气设备》 (GB/T 5226.1—1996 )
《低压开关设备和控制设备》 (GB/T 14048.5-2008)
《机械电气安全》 (GB/T 5226.1-2008)
《电热装置的安全》 (GB/T 5959.1-2005)
《电热装置基本技术条件》 (GB/T 10067.3)
《低压开关设备和控制设备》 (GB/T 14048.5-2008)
《餐饮业餐厨废弃物处理与利用设备》 (GB/T 28739-2012)
《餐厨垃圾处理技术规范》 (GB/T 28739-2012)
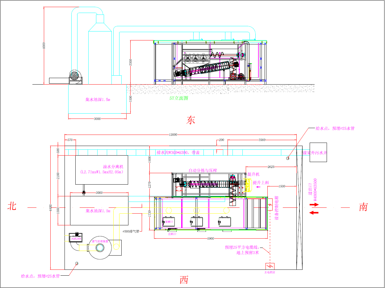
3、设计方案
工艺说明:
来料:项目来料采用桶装上料;
预处理:我公司产品预处理主要由自动分拣和破碎压榨脱水两部分功能模块组成;
发酵:采用高温好氧微生物发酵法,在24h小时内可以对发酵仓内的所有物料降解完成;
废水处理:废水主要包含预处理废水和发酵废水,废水通过油水分离机后进行生化处理达到纳管标准后排入市政管网;
废气处理:废水主要是指发酵仓库内微生物新陈代谢废气和搅拌废气,通过喷淋塔吸附+生物除臭装置进行处理;
废渣:发酵产物为是有机肥,经深加工后可用于种植肥料。
设计说明:
1.设备处理量:5t/d;
2.设备占地尺寸:12000×7000×6500mm ;
3.额定电压:380V;
4.额定功率:68KW ;
5.控制系统集中式,连续出料 ;
6.单线处理工艺:桶装来料—双螺旋输送—自动分拣—破碎压榨脱水—发酵主机;
7.废气处理:发酵主机—风机—喷淋预处理—废气处理设备—达标排放;
8.废水处理:发酵主机—集水井—污水处理站;
9.热交换水循环:喷淋塔—加热水箱—发酵主机水箱—喷淋塔。


扫一扫关注官方微信